Обяви За нас Контакти
Продава КЪЩА
област Бургас, гр. Несебър
При запитване
История на цената
Коригирана в 16:52 на 25 октомври, 2025 год.
Обявата е посетена 1363 пъти.
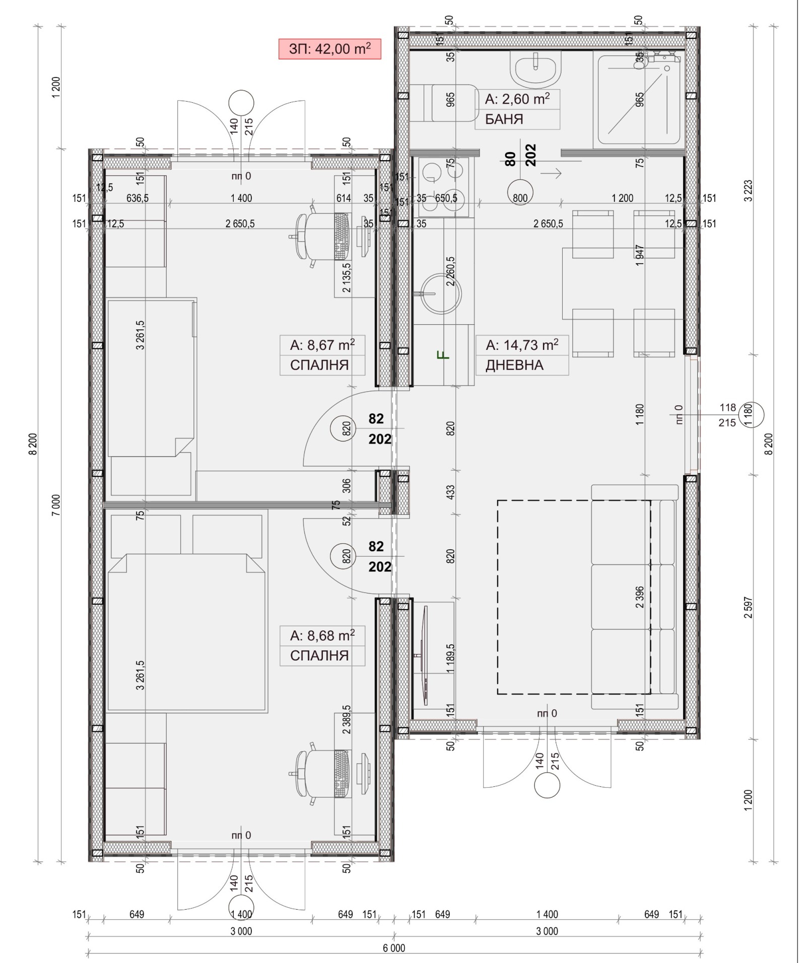
Площ:
42 m2
Двор:
1 m2
Строителство:
Сглобяема конструкция, 2024 г.

Описание на имота:


Продава се 42 кв.м. къща, готова за монтаж на Ваш парцел. Къщата се състои от хол с кухня, баня и тоалетна и две спални /подробно разположение на помещенията можете да видите в приложената скица/. Къщата може да бъде монтирана върху бетонен фундамент, ивичен фундамент или стъпков фундамент. Разполагаме с оборудване за монтаж на фундамент от земни анкери. Къщата може да бъде монтирана в рамките на 8 седмици. Посочената цена е за базовия Модел XL - конструкция, изцяло завършен отвън - вентилирани фасади и покрив, дограма, топлоизолация. Има възможност да бъдат направени всички видове довършителни дейности, включително и обзавеждане.
За повече информация посете сайта ни www.shelter.bg
Виж всички обяви в shelter.bazar.bg или тук
Особености
Сглобяема конструкция
За контакт:
0888042410

Този имот се предлага само на частни лица
Агенция:
ШЕЛТЕР
0888042410
ШЕЛТЕР logo
В imot.bg от 2024 г.
shelter.imot.bg
Адрес:
област София, гр. София, ул. Казбек 30
http://shelter.bg
ИЗПРАТИ ЗАПИТВАНЕ
ИЗПРАТИ ЗАПИТВАНЕТО

Продава КЪЩА
област Бургас, гр. Несебър
Обява: 1j174250159565451

При запитване
История на цената

ЗАПАЗИ ОБЯВАТА

Местоположение: област Бургас, гр. Несебър